Connect with us

Aktuality

Investor predstavil prvé návrhy krytej plavárne

Published

on

Reklama

Tesne pred sviatkami predstavil potenciálny investor Oskar Gaal detailnejší zámer realizácie krytého plaveckého bazéna primátorovi mesta Milošovi Tamajkovi. Ten o stretnutí informoval na rokovaní zastupiteľstva 17. decembra. Predbežný návrh objektu pripravil architekt Karol Jakubec. Rokovania o presných podmienkach spolupráce a detailoch zmluvy by sa mali uskutočniť v polovici januára.

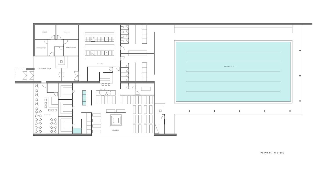
podorys piestany

Reklama

Investor, ako hovoril už pri prvom predstavení projektu v novembri, má záujem ovybudovanie 25-metrového bazéna so šiestimi dráhami a hĺbkou 120 až 160 cm, pričom súčasťou objektu má byť aj welness centrum. Koncom novembra si bol lokalitu vedľa futbalového štadióna pozrieť architekt Karol Jakubec, ktorý spracoval predbežné návrhy umiestnenia a vzhľadu objektu.

situacia piestany

Reklama

Objekt bazénu v prípade dohody podmienok medzi samosprávou a investorom by mal byť umiestnený napravo od hlavnej budovy futbalového štadióna, na voľnej ploche v blízkosti schodiska na tribúnu. Mal by tak len minimálne zasiahnuť do prostredia.

Investor počíta s maximálnou kapacitou bazéna 40 osôb/hod. Šatňa je dimenzovaná pre 100 návštevníkov. Welness má mať kapacitu 40 osôb/3 hodiny. Vrámci objektu by malo byť aj bistro s 25-timi miestami. V projekte zatiaľ nie je zakreslený výukový bazén, ale podľa Oskara Gaala, ho do konečného projektu vedia doplniť.

Investor má záujem si pozemok potrebný pre realizáciu stavby vedľa štadióna prenajať na minimálnu dobu 30 rokov. Detaily a podmienky zmluvy pripravujú právnici s tým, že rokovania s vedením mesta o všetkých detailoch pripravuje investor na polovicu januára.

Ak bude dohoda so samosprávou úspešná, s výstavbou by sa mohlo začať na jeseň tohto roka.piestany2piestany8piestany9piestany7piestany4piestany6piestany3

-th- Vizualizácie: Karol Jakubec-

Reklama